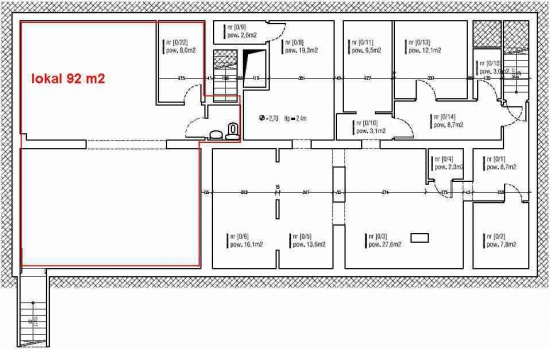
Lokal handlowo-usługowy usytułowany w przyziemiu bardzo łatwy w adaptacji idealny na punkty gastronomiczne, handlowe, usługowe itp. Usytuowany w przyziemiu nowo wyremontowanej galerii usługowo handlowej z dużym parkingiem. Obiekt znajduje się w ścisłym centrum Bytomia na strategicznym skrzyżowaniu drogi krajowej na Katowice. W pobliżu budynku znajdują się dwa przystanki autobusowo tramwajowe oraz postój Taxi i sąsiaduje z dużym osiedlem mieszkaniowym.
Zapraszamy do kontaktu:
606417233
budynek.bytom.pl
Lokalizacja: Bytom